Projekt |
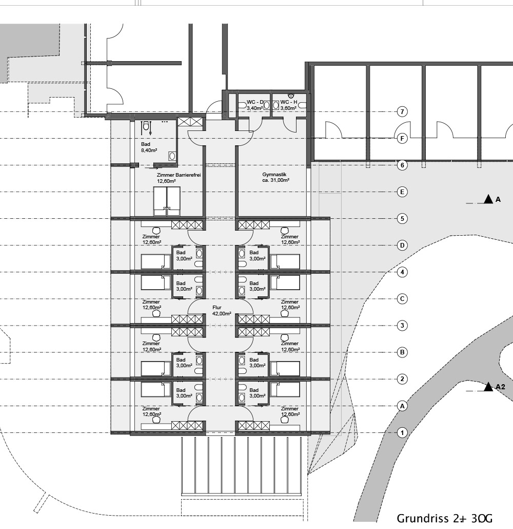
Gymnastikhalle + Patientenzimmer + Lehrküche | Bad DriburgVorentwurf für eine Gymnastikhalle und einer 3-geschossigen Aufstockung – Klinik Rosenberg |
Zeitraum |
12/2024 – 02/2025 |
Beauftragung |
Machbarkeitsstudie |
Planungsstand |
fertiggestellt |
Architekt |
Stellwerkstatt | Architekten |
Bauherr/Auftraggeber |
Deutsche Rentenversicherung Westfalen | Münster |